Skip to content
(225) 209-6551
Home
Apparatus
Production
Available
Delivered
Stock Chassis
Service
About
Company
Meet the Team
News & Testimonials
Trucks In Action
Careers
Contact
Home
Apparatus
Production
Available
Delivered
Stock Chassis
Service
About
Company
Meet the Team
News & Testimonials
Trucks In Action
Careers
Contact
(225) 209-6551
Hudlow Fire Department
Forest City, NC
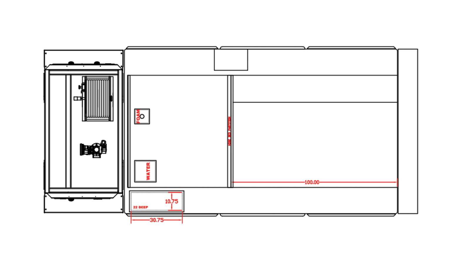
Custom Pumper
FT-1249
US Fire Apparatus Custom Chassis
Cummins L9 450 HP Engine
Allison 3000EVS Automatic Transmission
50 Gallon Steel Fuel Tank
Hale QMax XS 2000 GPM Pump
1000 Gallon Water Tank
3/16″ Heavy Duty, Extruded Aluminum Body
View Drawing
Search